Page contents
- Mathau o dai
- Manyleb tŷ dwy ystafell wely
- Manyleb tŷ pedair ystafell wely
- Cynllun y Safle
- Diweddariad Cymunedol
- Ymwadiad
Mae Llwyn Eirin yn ddatblygiad newydd arloesol – y tai cyngor cyntaf i ni eu hadeiladu ers 30 o flynyddoedd!
Mae Llwyn Eirin yn ddatblygiad newydd arloesol – y tai cyngor cyntaf i ni eu hadeiladu ers 30 o flynyddoedd! Mae Llwyn Eirin wedi’i leoli yn Sir Ddinbych a bydd yn cynnwys 18 o dai pâr dwy a phedair ystafell wely ar rent cymdeithasol.
Mae’r tai carbon isel hyn, a fydd yn cael eu hadeiladu a’u hardystio i safon arbed ynni Passivhaus, yn rhan o darged y Cyngor i ddarparu 170 o dai cyngor newydd erbyn 2022. I gael gwybod mwy am y cartrefi arloesol hyn, cliciwch yma.
Byddwn yn diweddaru’r dudalen hon wrth i’r prosiect symud yn ei flaen.
Byddwn yn diweddaru’r dudalen hon wrth i’r prosiect symud yn ei flaen.

Mathau o dai
Bydd y datblygiad cyffrous hwn yn cynnwys dau wahanol fath o dŷ pâr safon Passivhous.
Manyleb tŷ dwy ystafell wely
- Tai 2 ystafell wely gyda chegin/ystafell fwyta ac ystafell fyw (dim nwyddau gwyn wedi’u cynnwys)
- Toiled i lawr y grisiau
- 2 ystafell wely
- Ystafell ymolchi fawr gyda chawod drydan dros y bath
- Bleindiau a gorchudd lloriau wedi’u cynnwys
- System wresogi Passivhous
- Llefydd parcio
- Band Eang Ffeibr Cyflym iawn ar gael (cyflymder lawrlwytho <1Gbps)
- Tystysgrif Perfformiad Ynni – Gradd A (i'w gadarnhau)
- Band Treth y Cyngor (i'w gadarnhau)
- Tal Gwasanaeth (i'w gadarnhau)
- Ar gael fis Gwanwyn 2022
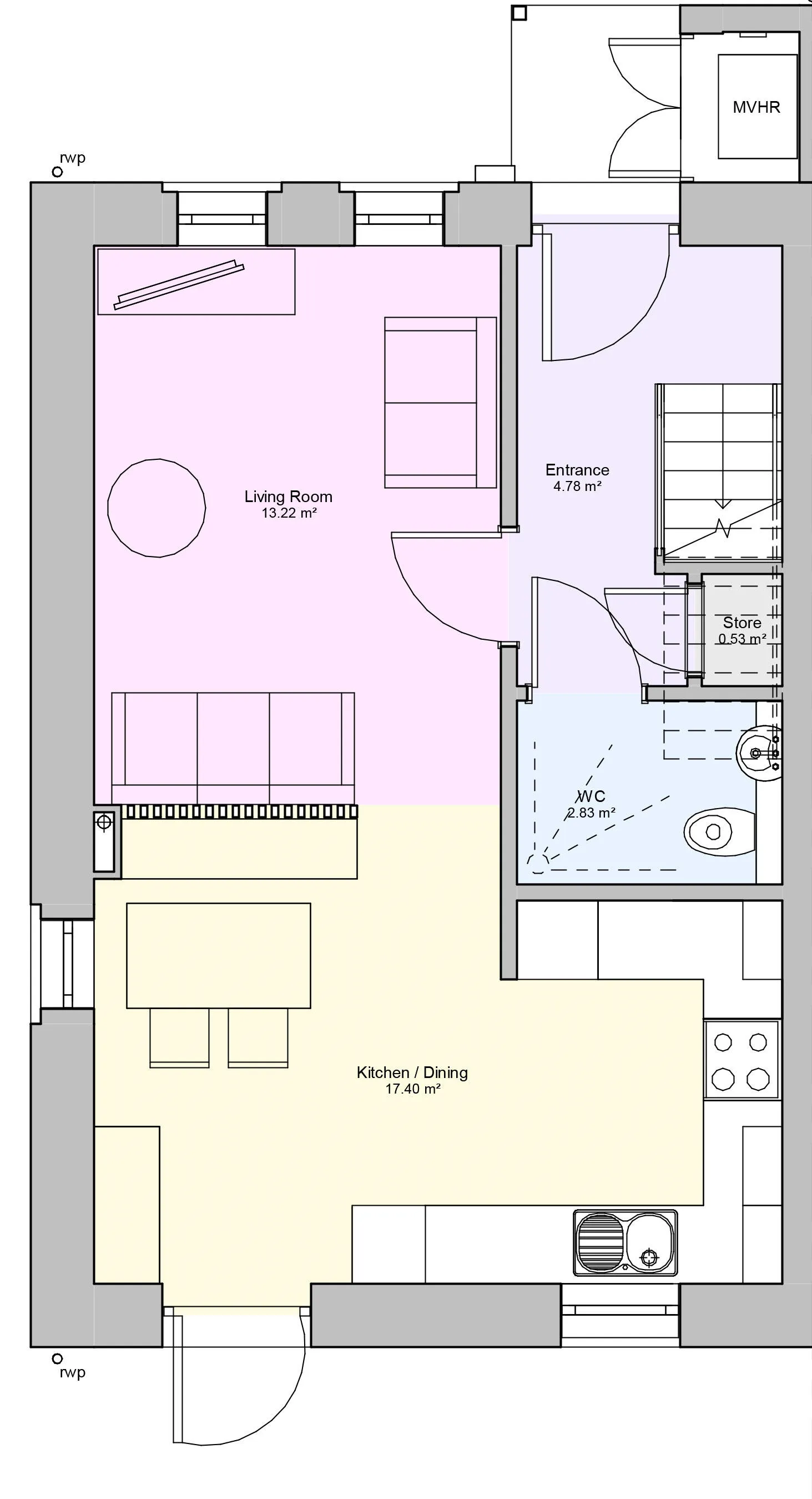
Math 1: dwy ystafell wely
Cynllun llawr tŷ deulawr math 1, dwy ystafell wely gyda chegin/ystafell fwyta ac ystafell fyw.


Math 2: dwy ystafell wely
Cynllun llawr tŷ deulawr math 2, dwy ystafell wely gyda chegin/ystafell fwyta ac ystafell fyw.


Math 3: dwy ystafell wely
Cynllun llawr tŷ deulawr math 3, dwy ystafell wely gyda chegin/ystafell fwyta ac ystafell fyw.


Math 4: dwy ystafell wely
Cynllun llawr tŷ deulawr math 4, dwy ystafell wely gyda chegin/ystafell fwyta ac ystafell fyw.


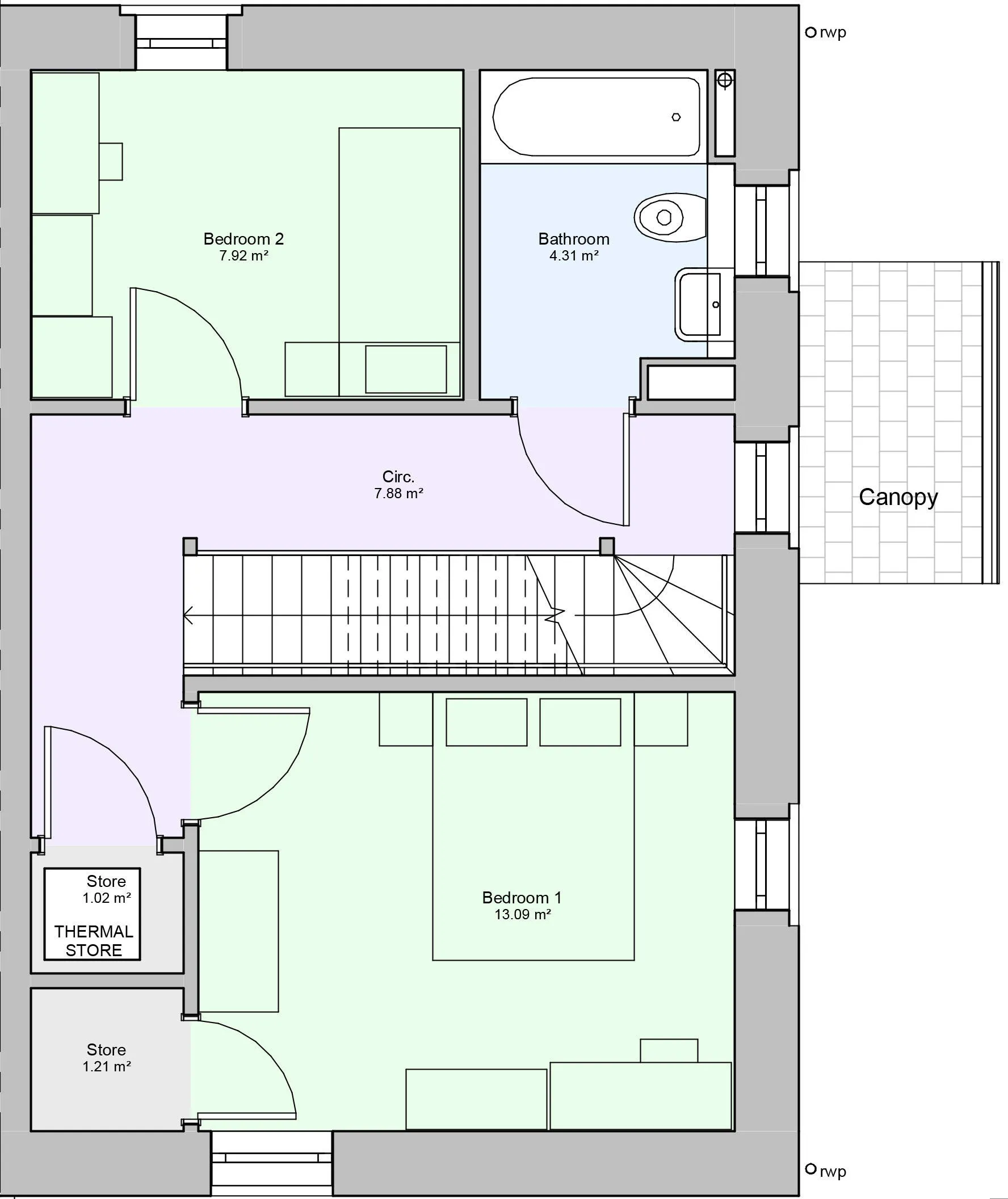
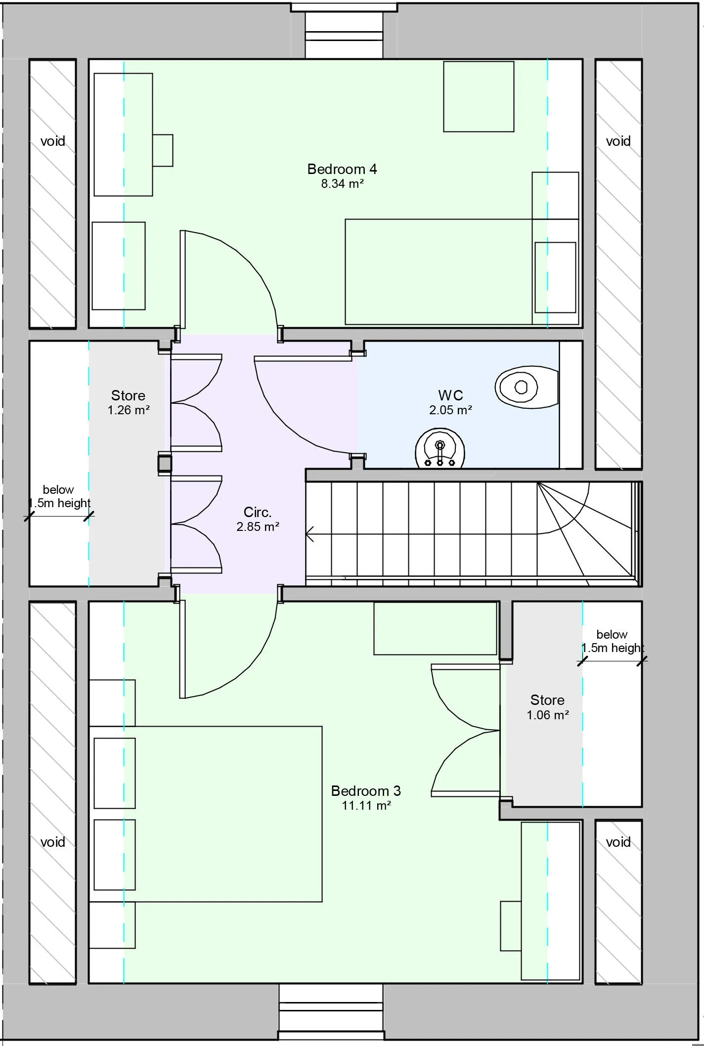
Manyleb tŷ pedair ystafell wely:
- 4 ystafell wely gyda chegin ac ystafell fyw/ystafell fwyta (dim nwyddau gwyn wedi'u cynnwys)
- Toiled i lawr y grisiau
- 4 ystafell wely
- Ystafell ymolchi fawr ar y llawr cyntaf gyda chawod drydan dros y bath
- Toiled ar yr ail lawr
- Bleindiau a gorchuddion llawr wedi’u cynnwys
- System Wresogi Passivhaus
- Llefydd parcio.
- Band Eang Ffeibr Cyflym iawn ar gael (cyflymder lawrlwytho <1Gbps)
- Tystysgrif Perfformiad Ynni – Gradd A (i'w gadarnhau)
- Band Treth y Cyngor (i'w gadarnhau)
- Tal Gwasanaeth (i'w gadarnhau)
- Ar gael fis Gwanwyn 2022
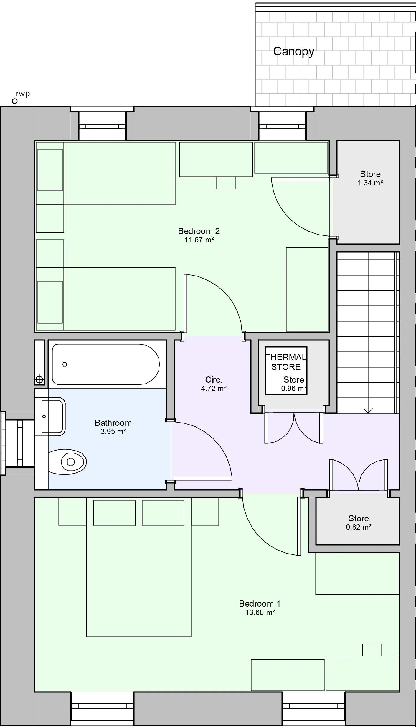
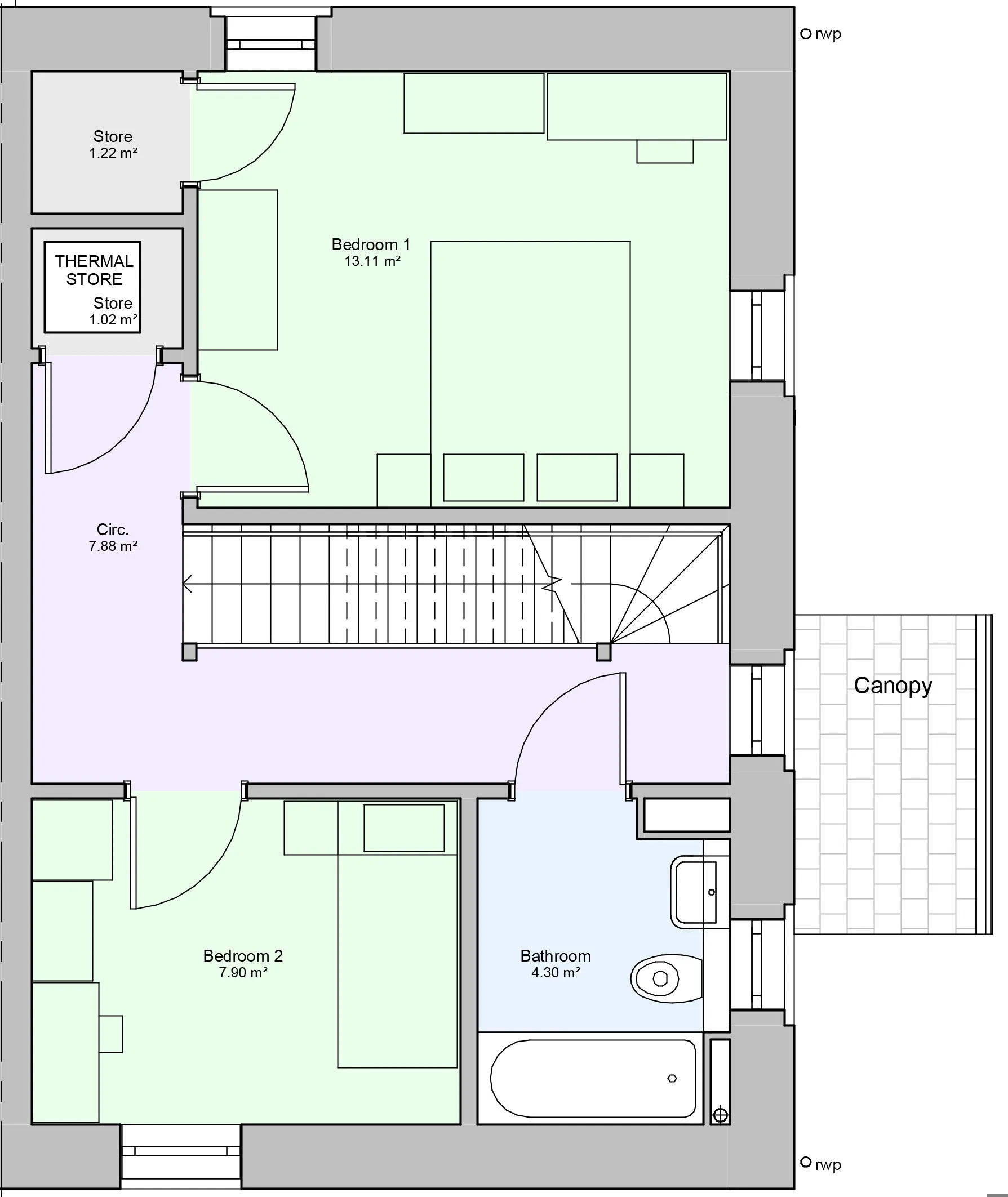
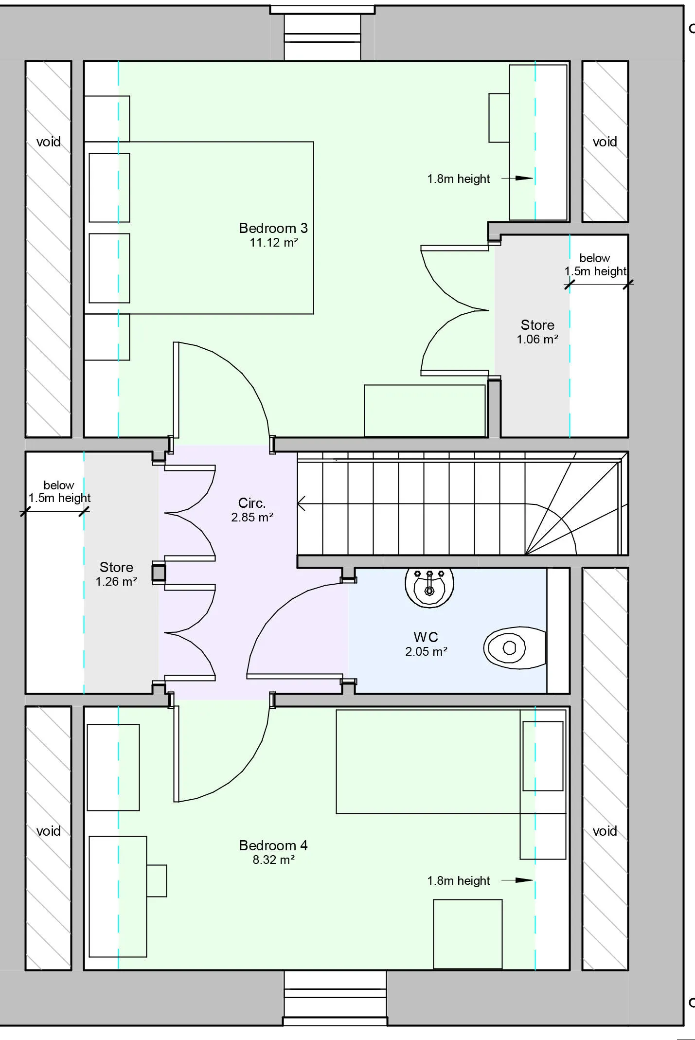
Math 1: pedair ystafell wely
Cynllun llawr tŷ tri llawr math 1, pedair ystafell wely gyda chegin ac ystafell fyw/ystafell fwyta.



Math 2: pedair ystafell wely
Cynllun llawr tŷ tri llawr math 2, pedair ystafell wely gyda chegin ac ystafell fyw/ystafell fwyta.



Cynllun y Safle
Llun o gynllun ystâd cul-de-sac ar gyfer 22 o gartrefi pâr gyda ffordd ar ystâd Llwyn Eirin.
- Glas = 4 gwely
- Melyn = 2 wely

Diweddariadau Cymunedol
Darllenwch ein diweddariadau cymunedol am gartrefi Llwyn Eirin
- Diweddariad Cymunedol Sir Ddinbych - Mai 2021 - Cymraegpdf file[1.02MB]
- Diweddariad Cymunedol Sir Ddinbych - Rhagfyr 2021 - Cymraegpdf file[399KB]
- Diweddariad Cymunedol Sir Ddinbych - Hydref 2022 - Cymraegpdf file[221KB]
Ymwadiad
Nodwch os gwelwch yn dda fod y lluniau a ddangosir i ddibenion enghreifftiol yn unig ac ni fydd unrhyw wybodaeth sydd wedi’i chynnwys yn y ddogfen hon yn ffurfio unrhyw ran o gytundeb. Mae’r holl fesuriadau a roddwyd yn rhai bras.
Ariennir yn rhannol gan Lywodraeth Cymru
